1
/
of
2
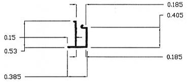
VGB3830 Vinyl Beading
VGB3830 Vinyl Beading
Regular price
$7.70 USD
Regular price
Sale price
$7.70 USD
Unit price
/
per
Couldn't load pickup availability
SWG Vinyl Beading 3830
12 feet stock lengths
Share
